Біля «Ашану» на просп. Чорновола у Львові збудують комплекс апартаментів

У комплексі облаштують 25 апартаментів

12:20, 6 січня 2024

У районі проспекту Чорновола у Львові збудують багатофункційний комплекс із апартаментами. Відповідні містобудівні умови та обмеження на будівнцитво видало управління архітектури та урбаністики Львівської міської ради.

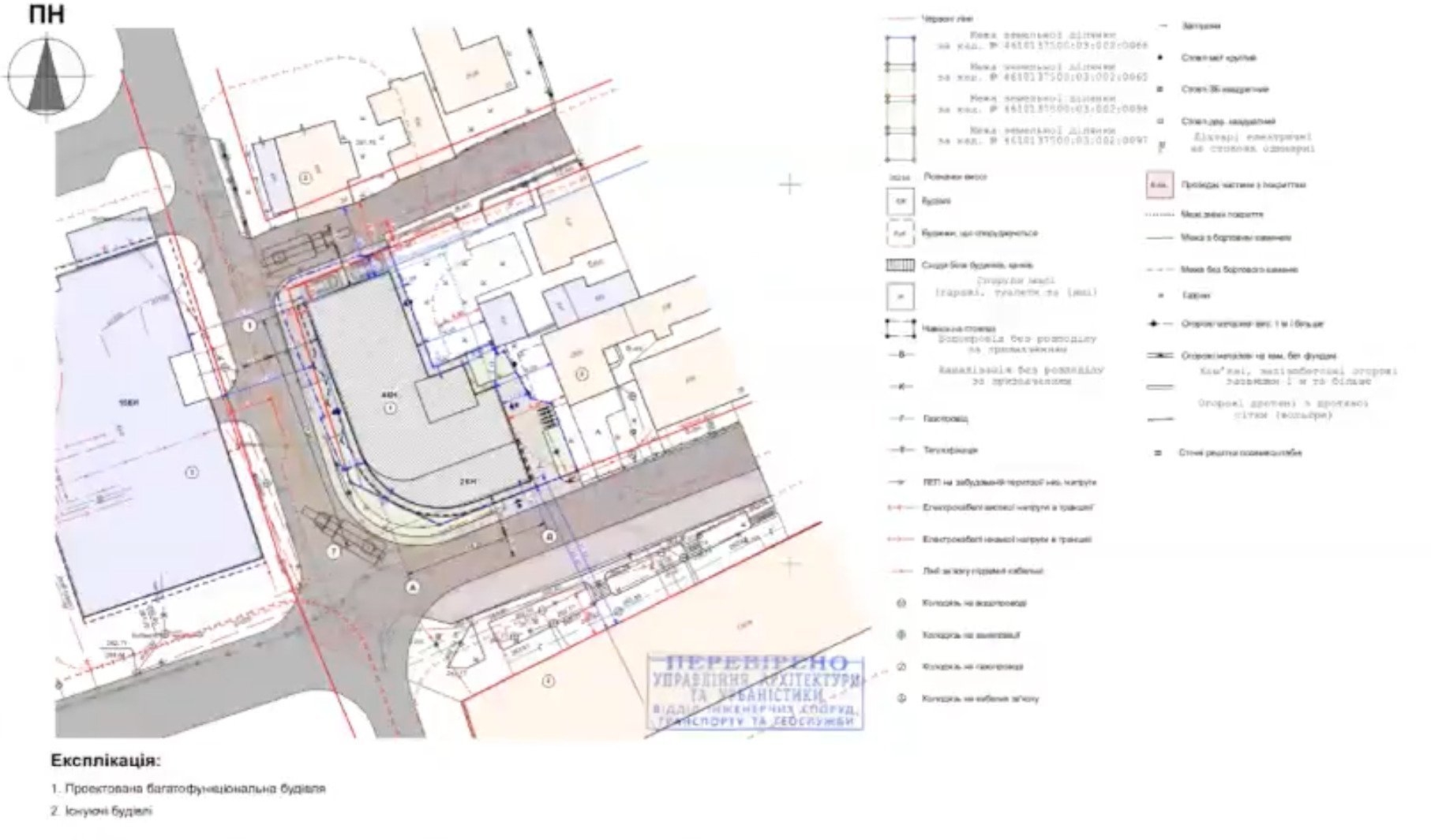
Йдеться про забудову кількох невеликих ділянок на вул. Ремісничій, 28 та Циганівки, 20, що належать до земель громадської забудови. У 5-поверховому багатофункційному комплексі планують облаштувати 25 апартаментів із комерцією на першому поверсі. Поруч облаштують два паркомісця, ще шість – всередині будівлі.

Під час засідання виконавчого комітету архітектор проекту Микола Буртик повідомив, що мешканці апартаментів за потреби зможуть паркуватися біля офісного центру на вул. Хімічній. Під ці потреби зарезервували ще 10-20 паркомісць.

Згідно з виданими МУО, висота будівлі не має перевищувати 8,7 м, а площа забудови ділянки – 74%. Питання дозволу на будівництво розглядали на засіданні виконавчого комітету ще 22 грудня. Тоді через зауваження щодо замалої кількості паркомісць це питання перенесли, аби здійснити виїзд на ділянку. Втім 4 січня видані МУО опублікували на сайті Львівської міської ради.

Якщо хочете читати головні новини дня оперативно Додайте ZAXID.NET у вибрані в Google Додати

Комплекс будуватиме ТзОВ «Апарт-Люкс». За даними аналітичної системи YouControl, компанія «Апарт-Люкс» зареєстрована у 2018 році на вул. Ремісничій, 28 та займається будівництвом. Одноосібним власником компанії є будівельна корпорація «Авалон», що належить львівʼянці Аллі Шамовій.