Біля очисних споруд у Львові збудують комплекс складів і виставковий центр

Площа складів охоплюватиме понад 18 тис. кв. м

17:41, 7 квітня 2023

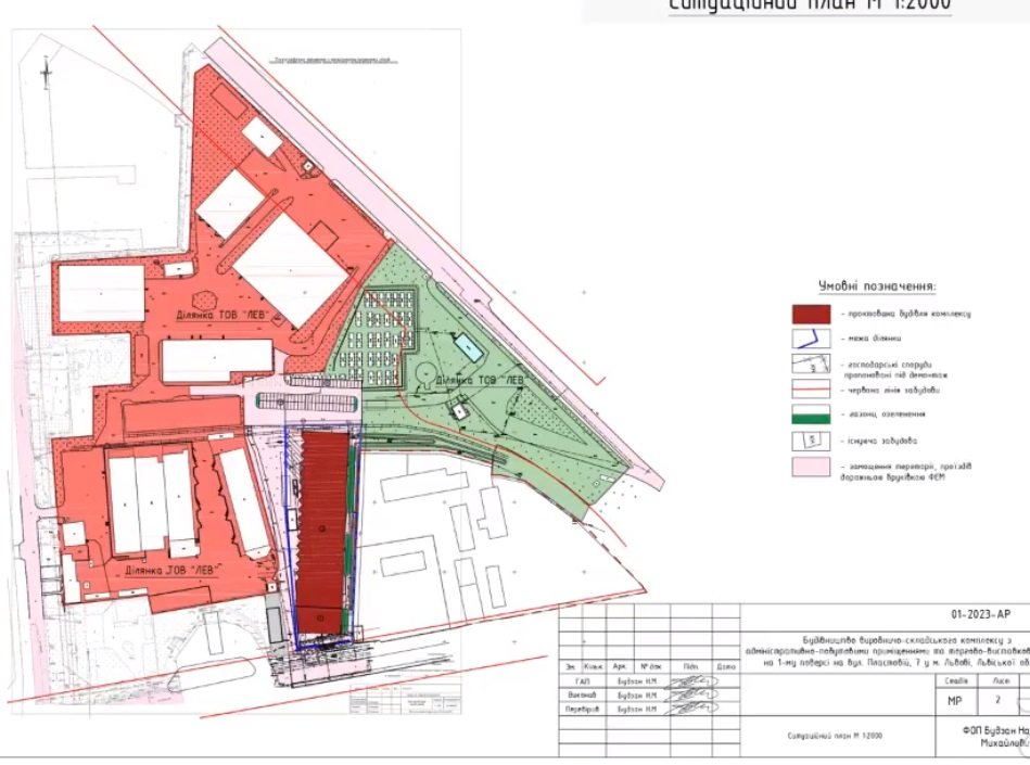
У Львові на вул. Пластовій у Львові збудують виробничо-складський комплекс з адміністративно-побутовими приміщеннями та торгово-виставковим залом. Загальна площа складів займатиме понад 18 тис. м2.

Йдеться про ділянку на вул. Пластовій, 7 площею майже 0,8 га, що належить до земель промисловості, транспорту і зв’язку. Раніше тут була нафтобаза, однак зараз цю ділянку розчистили та готують під будівництво складів. Згідно з містобудівними умовами, висота будівель не має перевищувати 33 м, а площа забудови – майже 63%.

Як повідомив під час засідання виконкому головний архітектор Львова Антон Коломєйцев, торцеву, 10-поверхову частину будівлі, яка буде найвищою, використовуватимуть як адміністрацію та виставковий центр для продукції. Решта будівель будуть триповерховими. В них розмістять склади з можливістю під’їзду для вантажівок. Загальна площа складів становитиме понад 18 тис. м2.

Будівництво вестиме ТОВ «Лев». Згідно з даними аналітичної системи YouControl, компанія зареєстрована у Львові на вул. Лінкольна, 10 та займається вирощуванням фруктів. Власником компанії є львівський підприємець, колишній заступник начальника міліції Львівщини і екс-заступник голови Львівської ОДА часів режиму Януковича Олег Рудницький. Йому також належить низка компаній, що займаються рослинництвом, зокрема, фермерське підприємство Green Garden у селі Новосілки.

Не пропустіть найважливіше Додайте ZAXID.NET у вибрані в Google Додати