На місці колишнього озера біля ТЦ Spartak облаштують ставок і сквер із рестораном
Під час будівництва ЖК забудовник осушив озеро та закинув його будівельним сміттям
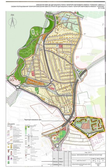
На місці осушеного Замарстинівського озера пропонують облаштувати штучний басейн із громадським простором і рестораном. Відповідний проєкт внесення змін до детального плану території житлового району «Голоско» (зміна 3) опублікували на сайті Львівської міської ради.
Загальний детальний план мікрорайону «Голоско» затверджений у 2013 році. Проєкт внесення змін охоплює територію площею 13,7 га, що обмежена вул. Замарстинівською, Топольною, Гетьмана Мазепи, Інструментальною та магістральною дорогою, закладеною генеральним планом Львова. З північної сторони до території внесення змін примикає старе кладовище та парк «Замарстинівський». Із південної сторони будується ЖК «Авалон-Лайт». Також у межах цієї ділянки розташовані ТЦ Spartak, ЖК Avalon Flex та ЖК Auroom Air, а також дві АЗС і багатоквартирна забудова на вул. Інструментальній.
Чорним кольором виділені межі проєкту внесення змін у ДПТ
Загалом проєкт цієї ділянки ДПТ передбачає будівництво льодової арени на 342 місця, мультифункціонального комплексу з офісами та громадським простором, а також напівпідземний паркінг на 582 паркомісця. Містобудівні умови та обмеження на це будівнцитво видали ще у 2018 році. Також проєкт передбачає реконструкцію перехрестя вул.Замарстинівської – Мазепи – Липинського, створення транспортної розв’язки на перехресті вул. Варшавської та Замарстинівської і будівництво магістральної хорди. Всі ці інфраструктурні проєкти передбачені генпланом Львова.
Натомість за оновленим проєктом ДПТ пропонують створити рекреаційну зону з басейном і закладом громадського харчування на місці Замарстинівського озера. У 2023 році навколо водойми виник скандал, адже забудовник Avalon під час будівництва житлового комплексу на вул. Замарстинівській, 172 осушив промислові ставки, а мешканці скаржились, що водойми засипані будівельним сміттям. На тлі розголосу Львівська міська рада провела кілька виїзних засідань, за результатами яких забудовник зобов’язався відновити озеро та облаштувати навколо відпочинкову зону.
За фактом забудови ділянки з водоймою на вул. Замарстинівській у травні 2023 року поліція відкрила кримінальне провадження. Слідчі підозрюють, що під час виділення землі забудовнику посадовці міської ради зловживали службовим становищем, коли передавали під забудову комунальну ділянку з водним об’єктом. Офіційні підозри в цій справі наразі не вручені.
На початку 2024 року ТзОВ «Науково-технічний центр міжгалузевих програм», що належить власниці будівельної компанії «Авалон» Аллі Шамовій, звернулося до Львівської міськради за дозволом на внесення змін у ДПТ. У березні 2024 року депутати прийняли відповідну ухвалу.
У пояснювальній записці до ДПТ вказано, що у 2023 році провели гідрогеологічні дослідження спірної ділянки, під час яких виявили, що ставок тут облаштували у ХІХ столітті для вилову риби. Згодом, під час реконструкції у ХХ столітті, його розділили на три окремі водойми, які живилися поверхневим, підземним стокам та водами Голосківського струмка. Зараз же струмок зарегульований в підземний колектор, тому відновлення потоку за старим руслом не можливе, вважають експерти.
Натомість, за проєктом внесення змін у ДПТ, на місці осушеного ставка пропонують облаштувати басейн, який буде наповнюватись із централізованого водопроводу з вул. Замарстинівської. Створення рекреаційної зони передбачає також посадку дерев та кущів і посів газону. Поруч також планують збудувати ресторан.
Громадське обговорення проєкту внесення змін до детального плану території житлового району «Голоско» (зміна 3) відбудеться 9 грудня у приміщенні Міського палацу культури імені Гната Хоткевича на вул. Кушевича, 1. Початок о 16:00.


