Бізнес-партнер депутата Львівської міськради збудує шестиповерхівку біля парку культури
Ділянка на вул. Турецькій частково вільна від забудови
Біля Парку культури та відпочинку імені Богдана Хмельницького у Львові збудують багатоквартиний житловий будинок із громадськими приміщеннями та підземним паркінгом. Відповідні містобудівні умови та обмеження представили на засіданні виконавчого комітету Львівської міськради у вівторок, 22 жовтня.
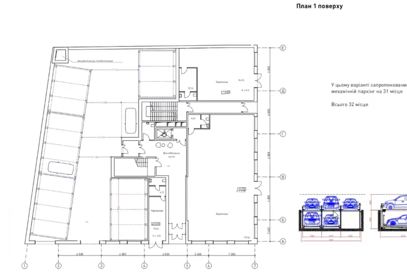
Йдеться про забудову ділянки на розі вул. Турецької та Зарицьких площею 0,10 га, що зараз частково вільна від забудови. Тут планують збудувати шестиповерховий житловий будинок із мансардою та механічним паркінгом на 31 паркомісце. Фасад будівлі виконають із натурального каменю
Візуалізація забудовника
.
Містобудівні умови та обмеження на будівництво отримало ОСББ «Турецька 4», створене у 2016 році. У 2023 році депутати ЛМР погодили ОСББ проєкт землеустрою щодо відведення ділянки на вул. Турецькій, 4 для обслуговування будинку.
Керівником ОСББ вказаний Роман Цітуля. Він також керує ТОВ «Латерія» і ТОВ «Драго Пропертіс», що належать брату депутата ЛМР від «Варти» Ореста Печенка Руслану. Крім цього, йому належить ТОВ «Лінден», де Орест Печенко вказаний як керівник.






