На заміну вікон у будівлі львівського велотреку витратять 14,3 млн грн
Навчально-спортивна база літніх видів спорту Міністерства оборони України уклала договір з ТОВ «Економбуд-ЛВ» на заміну вікон в будівлі легкоатлетичного комплексу з велотреком, що на Клепарівській 39а. Згідно з сайтом державних закупівель Prozorro, вартість робіт становить 14,3 млн грн. Ціна договору є твердою, тому підрядник не може збільшувати вартість робіт. Замінити вікна планують до кінця 2025 року.
Згідно з технічною документацією, до кінця 2024 року підрядник має зрізати навколо будівлі чагарники й викорчувати пеньки. Згодом планують встановити 15 нових алюмінієвих вікон Reynaers з енергозберігальним двокамерним пакетом. В кошторисі на вікна припадає 10,5 млн грн. Гарантійний термін експлуатації вікон становить п'ять років.
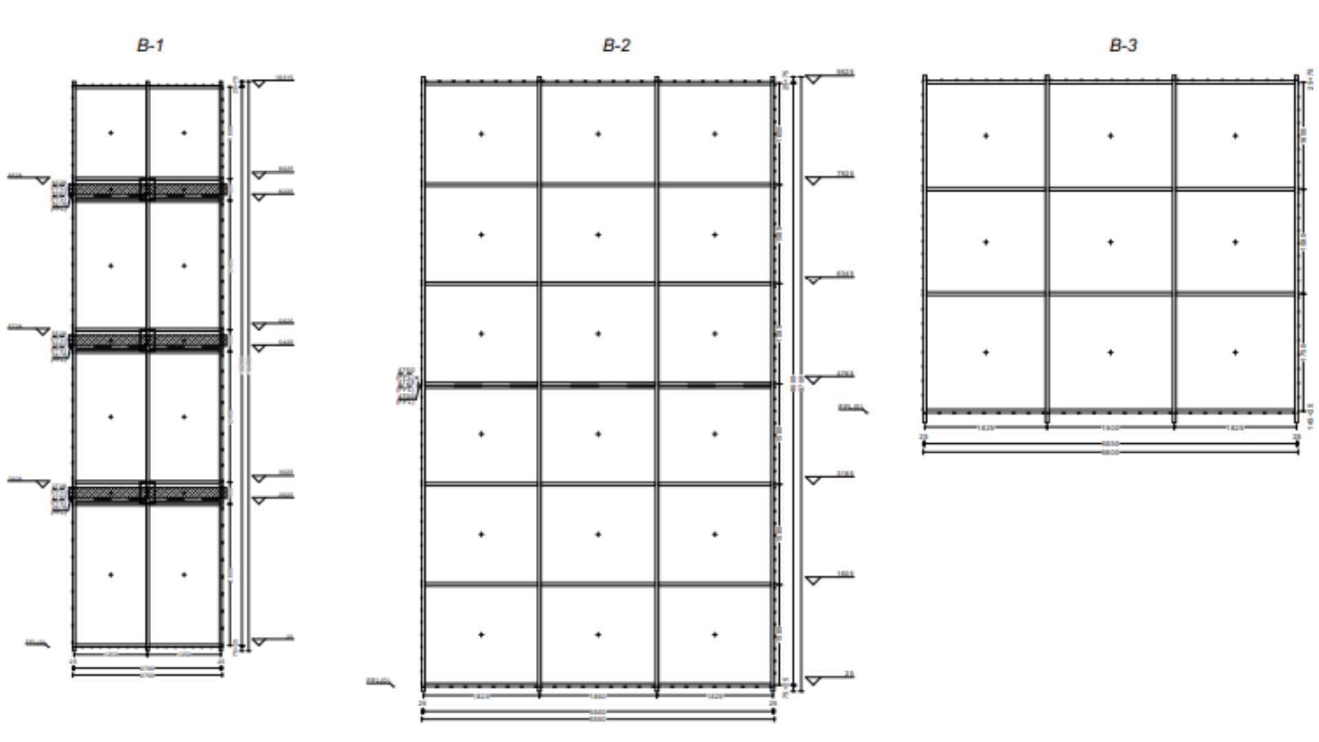
Підрядник замінити два вікна типу В-1, дев'ять вікон В-2 та чотири вікна В-3
Переможцем торгів стала компанія ТОВ «Економбуд-ЛВ», яка змагалася з ТОВ «В.Ф.Ф.». Підрядних відхилив пропозицію ТОВ «В.Ф.Ф.», яке запропонувало встановити вікна на майже 1 млн грн дешевше, оскільки компанія не надала всіх необхідних довідок про обладнання, інформації про працівників та про виконання аналогічного договору.
Якщо хочете читати головні новини дня оперативно Додайте ZAXID.NET у вибрані в GoogleЗгідно з аналітичним порталом YouControl, львівське ТОВ «Економбуд-ЛВ» працює з 2010 року й спеціалізується на будівництві. Керівником та власником компанії є Василь Лега. Сайт NGL.media розповідав, що раніше підприємець був власником компанії «Галицькі вітражі» з колишнім директором корпорації КРТ братів Дубневичів Юрієм Пастерником.
Крім цього, ZAXID.NET повідомляв, що ТОВ «Економбуд-ЛВ» у липні 2022 року отримало підряд на 41 млн грн на будівництво громадського комплексу у Старичах, який передбачає клуб, амбулаторію, спортивний комплекс та бібліотеку. Однак договір розірвали у квітні 2024 року, оскільки, як повідомили в Держаудитслужбі, підрядник не надав необхідних документів. Сайт «Наші гроші» у липні 2023 року повідомляв, що відділ освіти виконавчого комітету Самбірської міської ради замовив компанії «Економбуд-ЛВ» ремонт ліцею за вдвічі завищеними цінами.