На Підзамчі у Львові збудують новий 9-поверховий житловий комплекс
Серед забудовників – співвласниця компанії з орбіти будівельної компанії Avalon
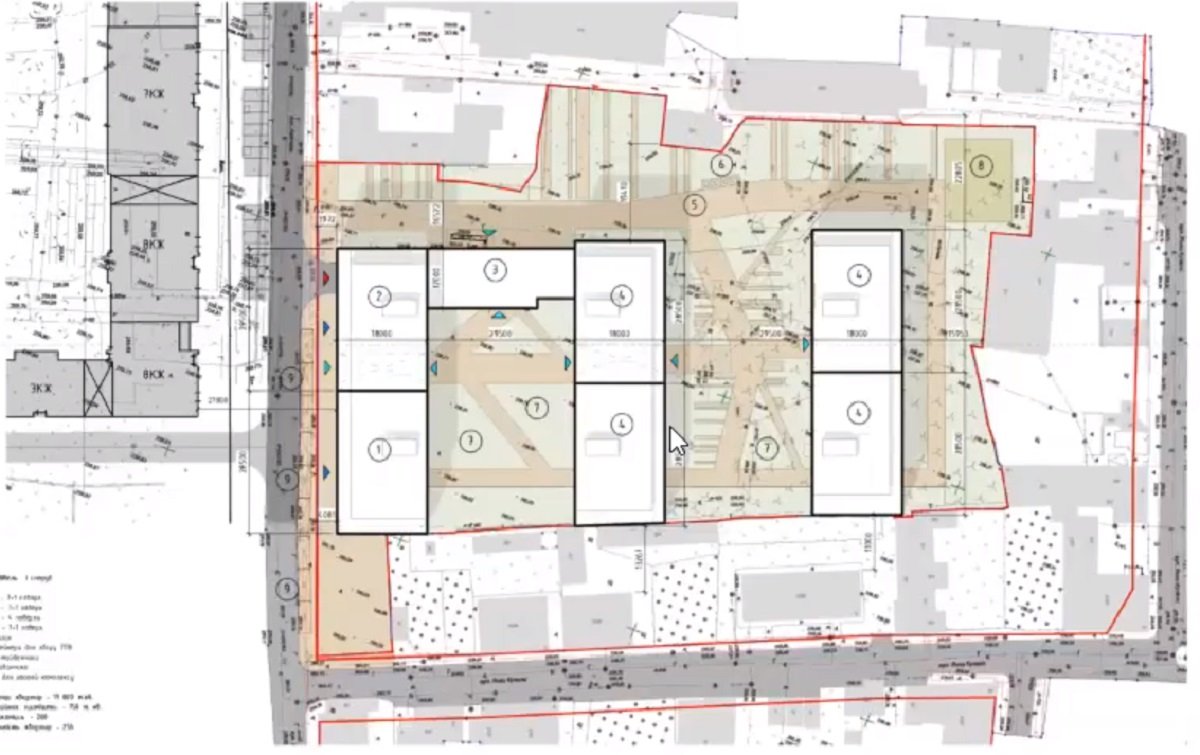
На вул. Квітовій у Львові збудують новий 9-поверховий житловий комплекс із комерційними площами та підземним паркінгом. Відповідні містобудівні умови та обмеження затвердив виконавчий комітет Львівської міськради у вівторок, 22 серпня.
Йдеться про забудову ділянки площею понад гектар на вул. Квітовій, 10, що перебуває у комунальній власності та призначена для будівництва житла. Із лютого 2022 року цю ділянку орендують ТзОВ «Флаверс Хілл» та ТзОВ «Шольц-Транс». Саме ці компанії звернулися до Львівської міськради за МУО. Частина ділянки вільна від забудови, а частину займають приміщення колишнього комунального підприємства «Львівське ремонтно-будівельне підприємство механізації робіт». У 2010 році компанія «Шольц-Транс» викупила ці приміщення на аукціоні за 2,2 млн грн.
Згідно з МУО, висота будівель не має перевищувати 30 м, а відсоток забудов – 33%. Загалом будинки матимуть різну висоту – 4, 7, 8 та 9 поверхів. У ЖК облаштують 256 квартир. У підземному паркінгу розташують 220 паркомісць, ще 10 парковок будуть наземними.
Візуалізація abmk
За даними аналітичної системи YouControl, ТзОВ «Шольц-Транс» зареєстроване 13 років тому у Львові за адресою будівництва та займається вантажними перевезеннями. Одноосібною власницею компанії є мешканка Брюховичів Марія Назаркевич.
Будівельна компанія «Флаверс Хілл» зареєстрована майже два роки тому за тією ж адресою. Одноосібною власницею фірми є мешканка Кам’янка-Бузької Уляна Мельник. Вона також вказана співзасновницею ТОВ «Авалон Маркет», основна частка статутного фонду якого належить ТОВ «Авалон Інк.».
Зазначимо, що на сусідній ділянці на вул. Квітовій будівельна компанія Avalon будує ЖК Avalon Yard.

