В історичному ареалі Львова збудують 5-поверховий ЖК із таунхаусами
Фірма-забудовник пов’язана із депутатом ЛМР Віктором Доскічем
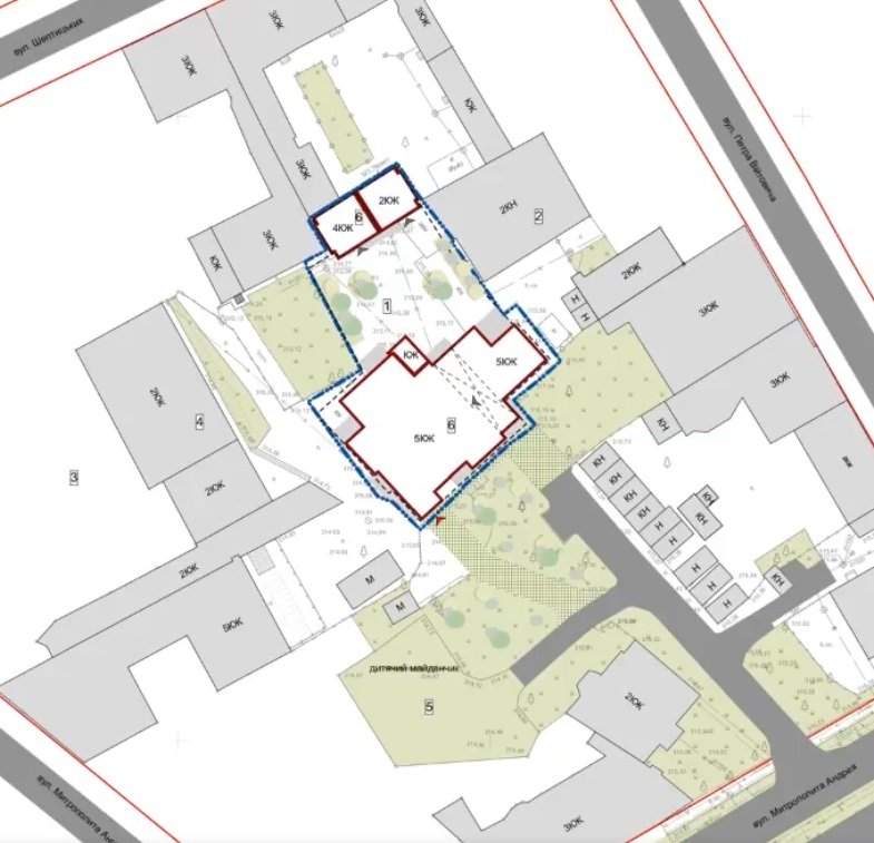
На вул. Шептицьких у Львові планують збудувати п’ятиповерховий житловий комплекс. Відповідні містобудівні умови та обмеження представили на засіданні виконавчого комітету Львівської міської ради у вівторок, 3 грудня. Фірма, що планує це будівництво, пов’язана із депутатом ЛМР Віктором Доскічем.
Йдеться про забудову ділянки площею 0,13 га на вул. Шептицьких, 31, вул. Митрополита Андрея, 12, вул. Митрополита Андрея, 12а, що перебуває в комунальній власності. У липні 2024 року депутати ЛМР передали цю ділянку в оренду на 10 років для Ірини Петрицької та ТзОВ «Благо-Ш» під забудову.
Зараз тут розташовані закинуті склади та гаражі. Натомість на цій ділянці планують збудувати п’ятиповерховий багатоквартирний житловий будинок двома таунхаусами на чотири та два поверхи з підземним паркінгом.
«Це звернення відповідає містобудівній документації і в цьому випадку йдеться про невеликий об’єкт всередині сформованої квартальної забудови в центральній частині міста, що відповідає опорному плану. Через всю ділянку буде забезпечений наскрізний пішохідний прохід», – повідомив головний архітектор Львова Антон Коломєйцев.
Якщо хочете читати головні новини дня оперативно Додайте ZAXID.NET у вибрані в GoogleДодамо, що нерухомість на цій ділянці приватизована ТзОВ «Благо-Ш» та Іриною Петрицькою. За детальним планом на цій ділянці хотіли збудуватьи готель, однак мешканці сусідніх будинків виступили проти, тож вже на розробку документів власники нерухомості подали звернення на будівництво житла.
За даними аналітичної системи YouControl, ТзОВ «Благо-Ш» зареєстроване у Львові. Її власницею і директоркою вказана львів’янка Ганна Прончак, однак правонаступником компанії є ПП «Грааль ДЛД-12», що належить батьку депутата ЛМР від «Європейської Солідарності» Віктора Доскіча теж Віктор Доскіч. Ірина Петрицька вказана як співвласниця і директорка низки будівельних компаній.


