Будинок-памʼятку в центрі Львова відреставрують під громадську будівлю
У двоповерховому будинку відновлять історичний аттик
Двоповерховий житловий будинок-памʼятку на вул. Вірменській у Львові відреставрують та переобладнають під громадські функції. Відповідні містобудівні умови та обмеження представили на засіданні виконавчого комітету в пʼятницю, 11 жовтня.
Йдеться про двоповерхову камʼяницю на вул. Вірменській, 17, що є памʼяткою архітектури національного значення й в останні роки використовувалась як житловий будинок.
Власники будівлі ТзОВ «Вірменська 17» планують відреставрувати будинок зі збереженням історичних елементів, а також відтворити аттик – невисокий третій поверх, який за дослідженнями був присутній в автентичній будові.
«Планується провести належним чином реставрацію зі збереженням навіть деревʼяних елементів і адаптувати цей поверх під функціонал громадської будівлі. На цьому будинку був невеликий аттик і цей аттик планується відтворити. На це є відповідний висновок упрвління охорони історичного середовища і Мінкульту, який не заперечує проти цих заходів», – повідомив головний архітектор Львова Антон Коломєйцев.
У будинку планують розмістити громадську функцію. Після погоджених МУО власники будинку мають передати проєкт реставрації на погодження в Мінкульт і проінформувати ЮНЕСКО.
«Це дуже відповідальний обʼєкт, є залишки готичні, є ренесансні, є частково збережені ціні деревʼяні балки перекриттів, фрагменти розписів. Ці речі мають буде збережені», – додав головний архітектор Львова.
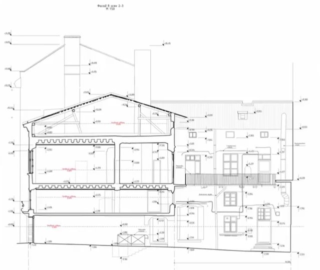
Проєкт реставрації камʼяниці на вул. Вірменській, 17
Додамо, що у 2020 році ОСББ «Вірменська 17» отримало від Львівської міської ради дозвіл на виготовлення проєкту землеустрою щодо відведення земельної ділянки на вул. Вірменській, 17. Однак у червні 2022 року Галицька окружна прокуратура через суд цю ухвалу скасувала.
ТзОВ «Вірменська 17» зареєстроване в серпні 2023 року. Його директоркою і співвласницею вказана Христина Тимчук – керівниця однойменного ОСББ та бізнес-партнерка керівника Комітету підприємців Львівщини Тараса Хмеловського. Інші співвласники – мешканець Луцька Ігор Гах і мешканець Сумської області Андрій Кифоренко, колишній бенефіціар універмагу на пл. Ринок.
Будинок №17 на вул. Вірменській – це перебудована камʼяниця доби Ренесансу, що зберігає первісну розпланувальну структуру та є пам'яткою архітектури і містобудування національного значення. Відома також як камʼяниця Еміновичівська.
У 2020 році команда реставраторів KARP Restorer розпочала досліджувати і відновлювати середньовічну Еміновичівську кам’яницю. Фахівці виявили різночасові елементи, найдавніші з яких – з XV ст.

