Міськрада погодила забудову житлом території експериментального заводу на Погулянці
Забудовник профінансує покращення соціальної інфраструктури району
На території колишнього Львівського експериментального механічного заводу на Погулянці збудують житловий квартал. Відповідні містобудівні умови та обмеження на перші дві секції представили на засіданні виконавчого комітету Львівської міськради у п’ятницю, 17 квітня.
Йдеться нове будівництво на вул. Жасминовій, 5, де раніше був механічний завод. Останні декілька років цей район активно забудовують житлом. У 2024 році депутати погодили зміни до детального плану території цього району, що передбачали будівництво нового житлового кварталу з прибудованими об'єктами громадського призначення та підземним гаражем, апарт-готелем і дитсадком.
17 квітня головний архітектор Львова Антон Коломєйцев представив містобудівні умови та обмеження на будівництво двох перших секцій на 6-7 поверхів. Забудовник також надав гарантійний лист про фінансування проєктів покращення соціальної інфраструктури району.
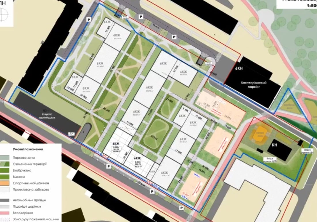
Візуалізація майбутньої забудови
Оперативні, достовірні і найважливіші новини тут Додайте ZAXID.NET у вибрані в Google«На території колишнього заводу планується зважена громадська забудова, є великі простори, відведені під спортивну функцію», – повідомив Антон Коломєйцев.
Додамо, що загальний ДПТ передбачає будівництво торгового центру, реконструкцію вул. Жасминової, будівництво нової частини вул. Півколо з прокладанням велодоріжки, оскільки основні заїзди до нових житлових кварталів передбачені з вул. Жасминова, проїзду Жасминова-бічна, та вул. Півколо-Проєктована.
Замовником будівництва ТзДВ «Львівський експериментальний механічний завод». Найбільші частки в компанії належать Анні та Леву Николайчукам.

