На Радванському кар’єрі в Ужгороді облаштують парк з фунікулером
Територію навколо можуть забудувати
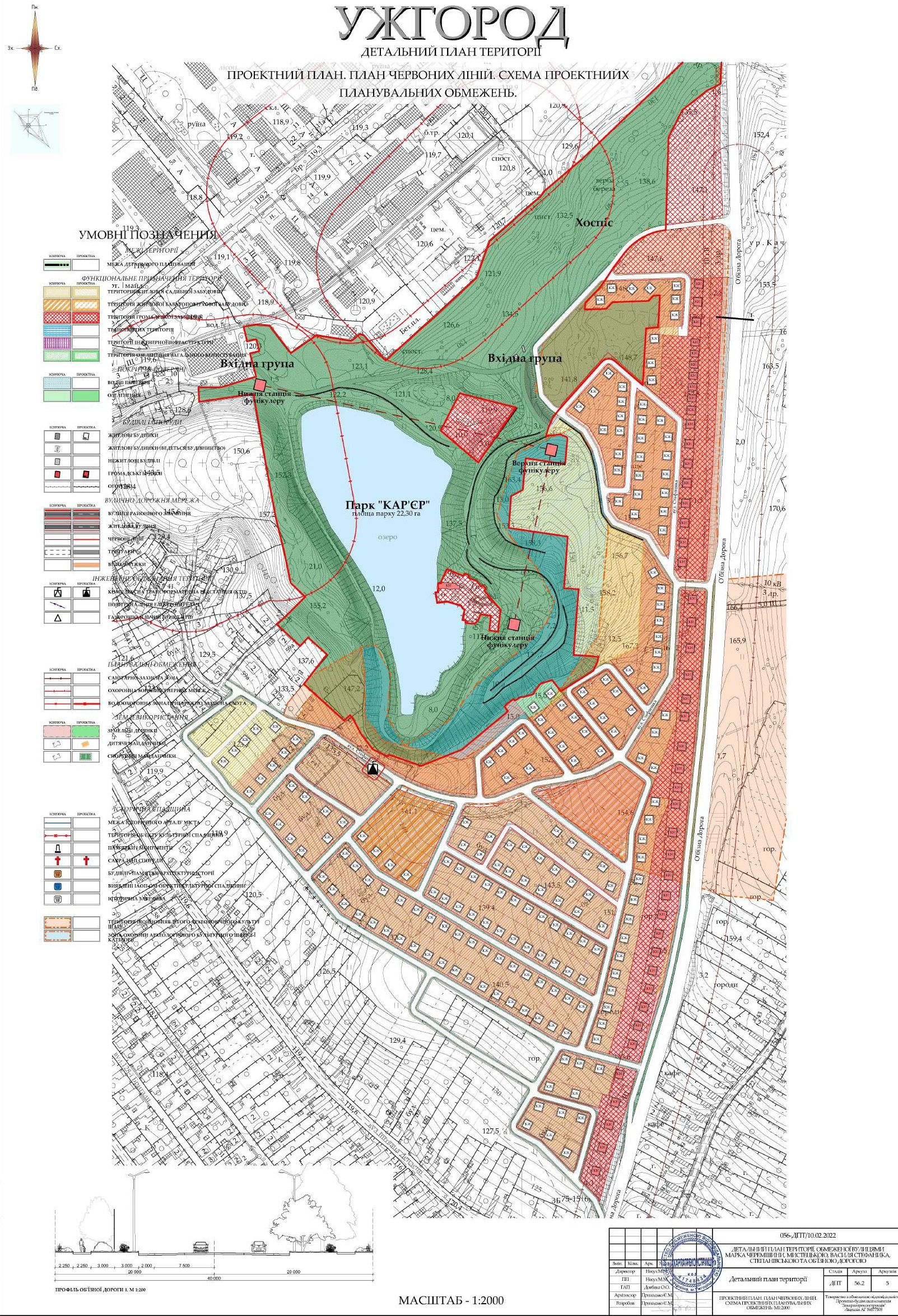
В Ужгороді затвердили зміни до детального плану території, обмеженої вулицями Марка Черемшини, Мистецькою, Василя Стефаника, Степанівською та об’їзною дорогою. Рішення ухвалили на сесії міської ради 13 червня.
Йдеться про територію навколо ужгородського кар’єру, розташованого в мікрорайоні «Радванка». Популярне місце літнього відпочинку планують перетворити на парк «Кар’єр», площею 22 га, обладнаний фунікулером.
Розміщення станцій фунікулеру на кресленнях ДПТ (натисніть для збільшення)
Навколо кар’єру розташовані 225 земельних ділянок, загальною площею 15,7 га. Як повідомили ZAXID.NET в Ужгородській міськраді 7 липня, питання забудови цих ділянок є «правомочністю їх власників та користувачів». Також в мерії зазначили, що поки не знають, коли почнуть облаштовувати парк «Кар’єр», скільки це займе часу і якою буде вартість робіт.
Нагадаємо, у листопаді 2023 року близько 800 ужгородців підписали звернення проти забудови Радванського кар’єру, яке ініціював місцевий мешканець Олександр Ровняк. Сталося це після оприлюднення відео, на якому зафіксували зведення житлових будинків на території кар’єру та прокладання до них дороги.
За інформацією Олександра Ровняка, ділянки, однаковою площею по 0,1 га біля водойми передали у приватну власність різним громадянам на сесії Ужгородської міської ради ще в жовтні 2012 року. У мерії відповіли, що ці ділянки планують перетворити на територію для обслуговування парку.
Зазначимо, що попри заборону купатися у водоймі, Радванський кар’єр є одним із найбільш відвідуваних місць відпочинку для ужгородців. Тут медитують, тренуються бігуни, плавці та ватерполісти. Глибина водойми за різними оцінками – від 25 до 40 метрів. Водойма утворилася на місці промислової розробки каменю у кінці ХІХ століття.

